Projekte in Planung

Neubau mit 13 Eigentumswohnungen in Münchingen

Schlossgasse 5-7, Ortsteil Münchingen, Gemeinde Korntal-Münchingen 

Im historischen Ortskern entsteht in ruhiger Lage ein Mehrfamilienhaus-Komplex bestehend aus zwei separaten Häusern, mit direktem Blick auf den gegenüberliegenden Schlosspark mit Schloss. 

Die komfortablen Wohnungen sind teilweise behindertengerecht geplant. 

Im Untergeschoss befinden sich die Kfz-Stellplätze, die Kellerräume sowie die Technikanlagen.  

Das Baugesuch ist eingereicht. 

Bauzeiten (geplant)
Baubeginn: 2021 -  Fertigstellung: 2022 

Einheiten
17

Wohnfläche
49 m² bis 172 m²

Preis
260 000 € bis 575 000 €

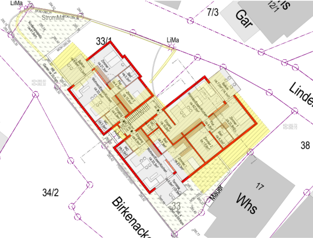
Neubau mit 8 Eigentumswohnungen in Strümpfelbach

8 – Familien–Wohnhaus Strümpfelbach Lindenstraße 19, Ortsteil Strümpfelbach 

Gemeinde Weinstadt Auf dem Gelände des ehemaligen Gasthofs „Linde“ ist ein Mehrfamilienhaus mit 8 komfortablen Wohnungen geplant. 

Die Lage ist ruhig, da die Lindenstraße keine Durchfahrtsstraße ist. 

Der Ort Strümpfelbach ist ein beliebter, traditionell geprägter Weinort mit hoher Lebensqualität, die auch durch das rege kulturelle Gemeinschaftsleben noch zusätzlich aufgewertet wird.

Aktueller Stand: In Vorplanung
 
Bauzeiten (geplant)
Baubeginn: 2022  -  Fertigstellung: 2023 

Einheiten
9

Wohnfläche
53 m² bis 113 m²

Preis
270 000 € bis 575 000 €